APC Pendulum Valve gate system setting
振子式バルブコントロールシステム(ニッケルボディ)

コンダクタンス0まで調整可能な圧力制御バルブ
排気系ゲートバルブ
真空計と接続して圧力制御する真空計電源を提供できます
USB ポートでコンピュータと接続すると、ソフト設定と制御できます
ローカルまたはリモートの操作制御、LCD状態表示装置
断電のリセットモジュールを選択購入可能
SPEC
材質 | ボディ:A6061-T6 ゲート:A6061-T6 |
---|---|
リークレート | 1x10-9mbar.l /sec |
サイクルライフ | 200,000回 |
ベーキング温度 | ボディ:<120℃ |
使用圧力範囲 | 1x10-8mbar〜1.2bar |
最大差圧△P | 2bar |
圧縮エアー圧力 | 4〜6kg/cm2 |
開/閉時間 | 2/2秒 |
標準シール | ゲート:バイトンOリング ボンネット:バイトンOリング |
駆動器 | ステップモーター |
重量 | 32kg |
取付方向 | 水平(シリンダアップ)または垂直 |
オプション | 他材質のゲートOリング ヒーター |
コントローラー付アクチュエーターユニット
消費電力 | +24V DC(±10%) 100W max.(controller+motor) 10W max. for Power Failure Option 36W max. for Sensor Power Supply |
---|---|
センサー入力 | 信号電圧:0-10V DCリニア圧力 入力抵抗:Ri=100kΩ 解像度:2.3mV サンプリングレート:1ms |
制御精度 | 最大センサー範囲:0.2% |
位置解像度 | >8,000 |
周囲温度 | 最大50℃ |
スロットリングサイクル | 200,000回 |
センサー供給 | 24V DCまたは±15V DC |
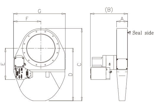
SIZE

ISO | Model No. | A | B | C | D | E | F | G | Port Dia. |
O.D. |
---|---|---|---|---|---|---|---|---|---|---|
250 | PVSV-A-ISO250-M | 100 | 338 | 655 | 475 | 283 | 248 | 470 | 254 | 335 |
ボルトPCD | ボルトサイズ |
---|---|
310 | M10×15 |
※ 2D CADデータはHtc社オフィシャルサイトよりダウンロード出来ます。
※ 3D CADデータが必要な方は(株)スプリードまでご請求ください。